
Данный проект, как и любой другой готовый проект дома или коттеджа из нашего каталога, будет предоставлен Вам бесплатно при заказе строительства дома.
Также бесплатно при заключении договора:
Детальная смета
Выезд специалиста на объект, привязка к участку
Установка высотных отметок
ОСТАВИТЬ ЗАЯВКУДанный проект может быть изменен в соответствии с Вашими пожеланиями.
Мы готовы изменить размеры дома и оптимизировать планировки, подобрать оптимальные (другие) материалы, уменьшить или увеличить высоту этажей, добавить или убрать цокольный этаж, добавить террасу, балкой и многое другое.
Проект 101–19 предлагает двухэтажный
Для будущих хозяев предусмотрено четыре удобные спальни, гараж, уединенный кабинет и уютный теневой навес на крыше.
Особенности проекта
Планировка
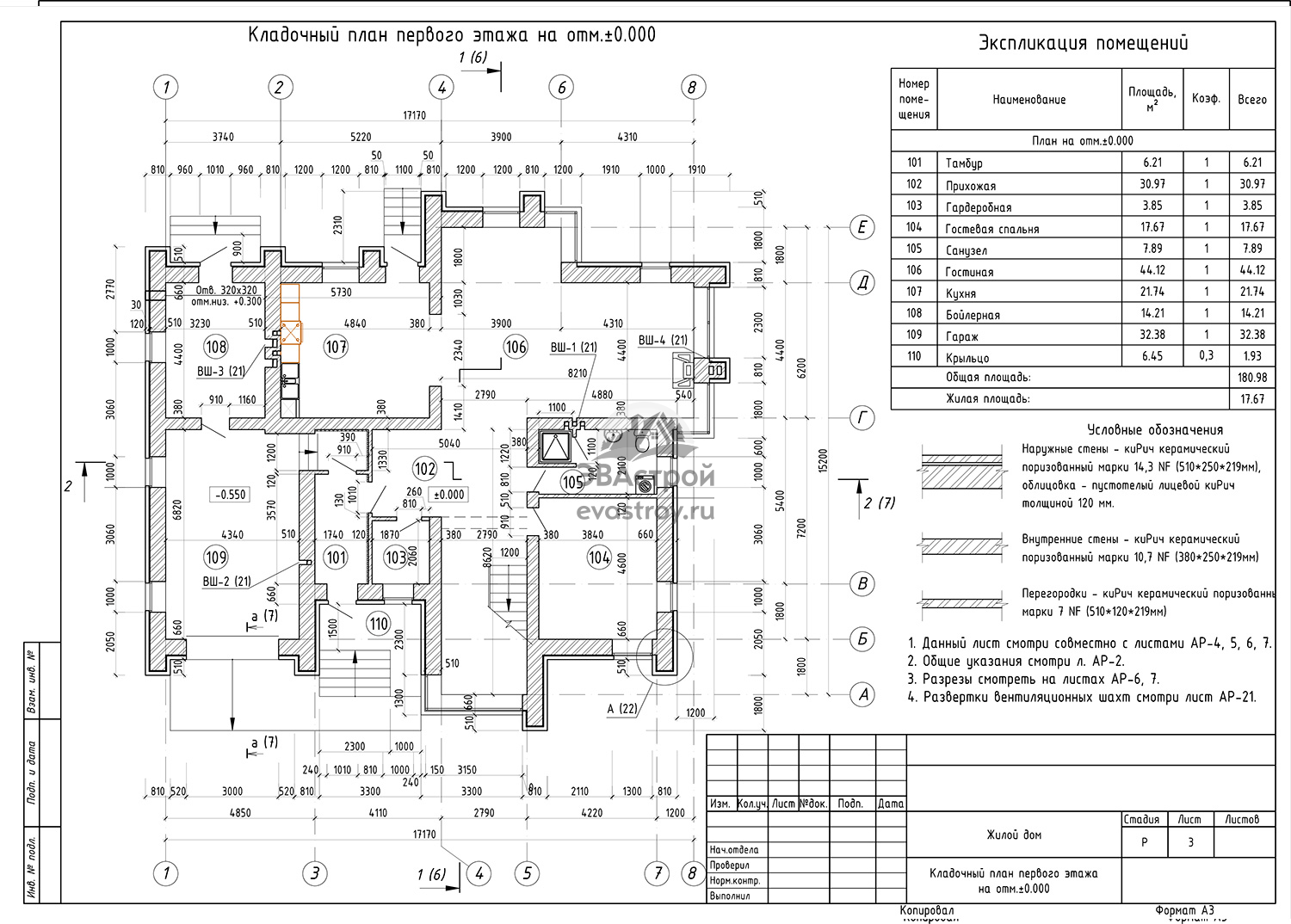
Попасть в дом можно тремя различными способами. Кроме парадного входа, отдельная дверь с крыльцом спроектирована в кухне, а также в бойлерной. Входящих встречает продолговатый тамбур, откуда через небольшой предбанник есть выход в гараж с дальнейшим проходом в довольно большую бойлерную (14,21 м2). Первый этаж традиционно отведен под активную зону, однако здесь предусмотрена и комфортная гостевая спальня, которая может стать комнатой для пожилого члена семьи. Гостиная большая (44,12 м2), с большим фронтальным камином. Для семейных трапез предусмотрен шестиместный столик на кухне.
Набор помещений второго этажа подходит для семьи с 2–3 детьми. Одна из комнат отведена под спальню родителей и в ней предусмотрен гардеробный отсек. Есть еще две детские площадью 17,67 м2 и 18,42 м2, а также кабинет (17,86 м2), который также может стать комнатой.
Небольшая часть плоской кровли обустроена под затененный навес, где для отдыха в жаркий летний день можно установить пару кресел и столик.
Для покупки проекта 101–19 оставьте заявку на сайте или свяжитесь с менеджерами «Эвастрой» по контактному телефону
Площадь:
277.93 м2Площадь:
278.47 м2Площадь:
278.53 м2Площадь:
279 м2Заполните формы ниже и наши специалисты свяжутся с вами в самое ближайшее время.
Заполните формы ниже и наши специалисты свяжутся с вами в самое ближайшее время.
Заполните формы ниже и наши специалисты свяжутся с вами в самое ближайшее время.
Заполните формы ниже и наши специалисты свяжутся с вами в самое ближайшее время.
Заполните формы ниже и наши специалисты свяжутся с вами в самое ближайшее время.