
Данный проект, как и любой другой готовый проект дома или коттеджа из нашего каталога, будет предоставлен Вам бесплатно при заказе строительства дома.
Также бесплатно при заключении договора:
Детальная смета
Выезд специалиста на объект, привязка к участку
Установка высотных отметок
ОСТАВИТЬ ЗАЯВКУДанный проект может быть изменен в соответствии с Вашими пожеланиями.
Мы готовы изменить размеры дома и оптимизировать планировки, подобрать оптимальные (другие) материалы, уменьшить или увеличить высоту этажей, добавить или убрать цокольный этаж, добавить террасу, балкой и многое другое.
Дом с кирпичными фасадами и многоскатной крышей выглядит современно и привлекательно, а две просторные крытые террасы полностью закрывают потребность в пространствах для отдыха. Здание располагает площадью 385 м2 и тремя уровнями, в том числе подвалом и мансардой.
Технические решения и дизайн
Общий золотистый фон стен отлично гармонирует с кровлей глубокого коричневого цвета, каменной отделкой цоколя и опор, кофейным цветом перил на террасах и балконе. Окна лаконично оформлены прямыми сандриками.
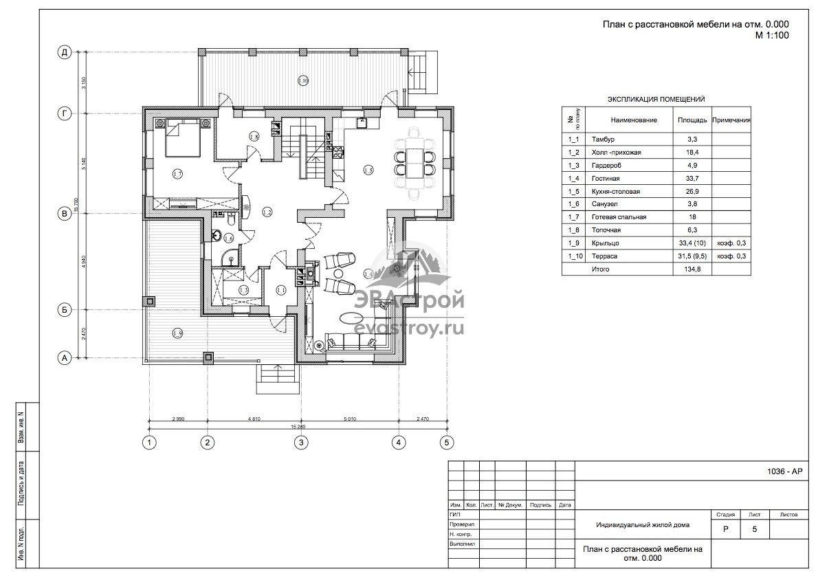
Планировка
На первом этаже размещена входная группа, топочная с отдельным входом и гостевые помещения.
В просторной эркерной гостиной обустроено две зоны отдыха. Для любителей телепередач предусмотрен удобный диван и
Второй этаж включает 4 спальни (две взрослые и две детские), общую гардеробную и два санузла, в одном из которых смонтирована душевая кабина, в другом — ванна. Одна из спален имеет выход на небольшой балкон.
Для покупки проекта 101–49 оставьте заявку на сайте или свяжитесь с менеджерами «Эвастрой» по контактному телефону
Площадь:
347.29 м2Площадь:
347.56 м2Площадь:
350 м2Заполните формы ниже и наши специалисты свяжутся с вами в самое ближайшее время.
Заполните формы ниже и наши специалисты свяжутся с вами в самое ближайшее время.
Заполните формы ниже и наши специалисты свяжутся с вами в самое ближайшее время.
Заполните формы ниже и наши специалисты свяжутся с вами в самое ближайшее время.
Заполните формы ниже и наши специалисты свяжутся с вами в самое ближайшее время.