
Данный проект, как и любой другой готовый проект дома или коттеджа из нашего каталога, будет предоставлен Вам бесплатно при заказе строительства дома.
Также бесплатно при заключении договора:
Детальная смета
Выезд специалиста на объект, привязка к участку
Установка высотных отметок
ОСТАВИТЬ ЗАЯВКУДанный проект может быть изменен в соответствии с Вашими пожеланиями.
Мы готовы изменить размеры дома и оптимизировать планировки, подобрать оптимальные (другие) материалы, уменьшить или увеличить высоту этажей, добавить или убрать цокольный этаж, добавить террасу, балкой и многое другое.
Представляем жилой дом общей площадью 380 м2. В нем три этажа, включая мансардный и цокольный. Проект весьма интересен с точки зрения строительства загородного жилья, и причины тому следующие:
Технические решения, дизайн
Наружные стены выполнены из газобетонных блоков, а в качестве наружной отделки применен облицовочный кирпич и штукатурка, для цоколя — искусственный камень. Кровля покрыта мягкой черепицей. В конструкцию дома включен широкий одноэтажный эркер с высокими окнами; на уровне мансарды эркер оканчивается балконом. Входная группа представлена крыльцом с двусторонними ступенями, с крышей, опирающейся на массивную опору. Очень органично смотрятся на фасадах элементы фахверка и переплетенные окна.
Планировка
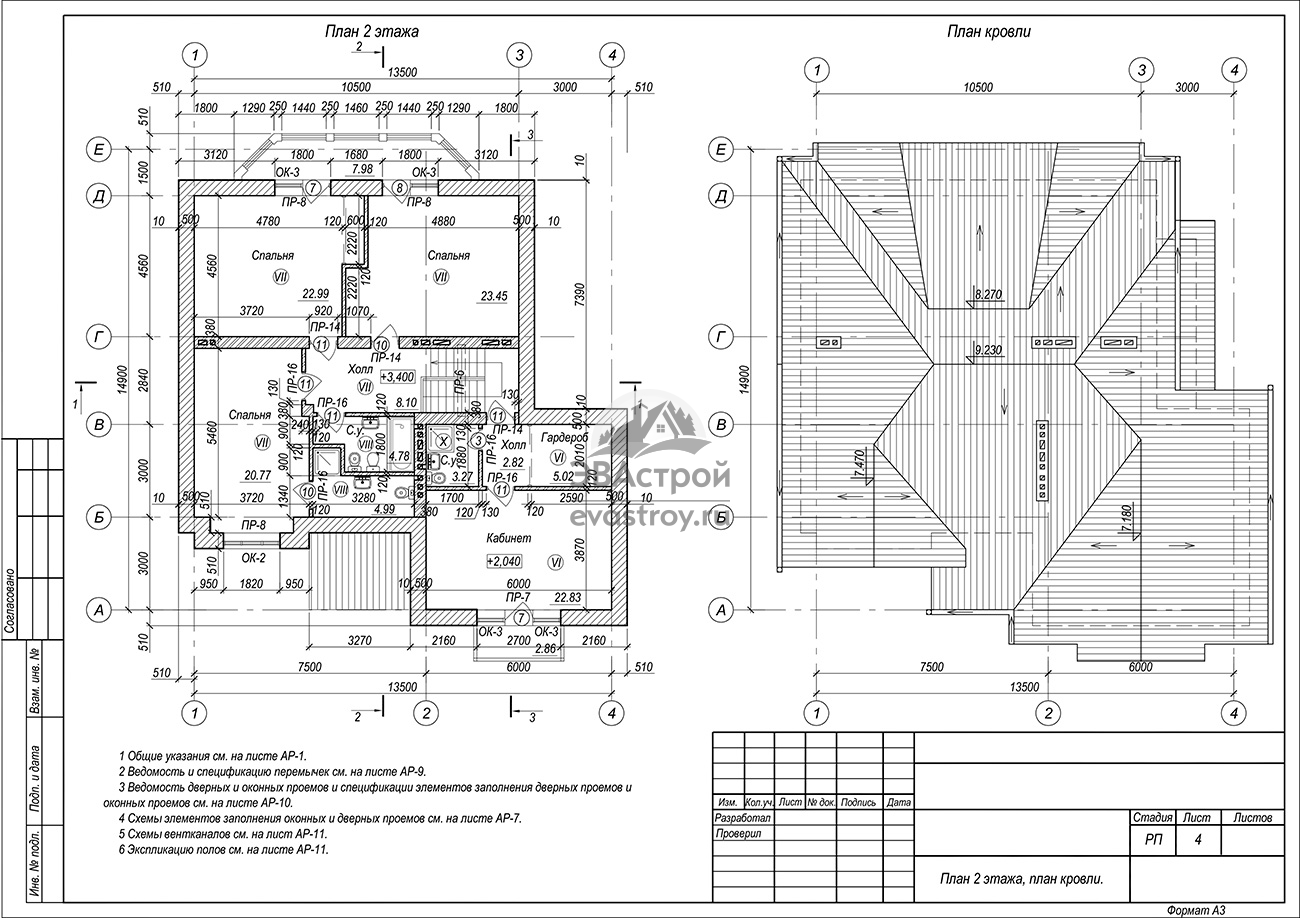
В цокольном этаже вы сможете насладиться посещением сауны и бассейна, а затем направиться в комнату отдыха, где к вашим услугам — мягкие диваны и кресла. Здесь же расположена агрегатная с отопительным оборудованием и постирочная, санузлы, вместительная кладовая и лестничный холл. Первый этаж — дневная территория дома. В большой гостиной (57 м2) вы можете посидеть у камина или полюбоваться на пейзаж за окном через высокие окна эркера. Часть гостиной отведена под обеденную зону, где за большим столом удобно принять друзей или родственников. Любая хозяйка оценит просторную 18-метровую кухню, с длинными удобными столешницами и отдельным входом из холла. Во входной зоне, у тамбура, расположена туалетная комната. В гараж можно попасть из холла, а также через отдельную дверь с улицы. На втором этаже четыре спальни площадью 21-23 м2, и два санузла — приватный и общий. Из двух спален есть доступ на общий балкон. Над гаражом размещен кабинет (23 м2), где хватит места не только для рабочего стола, но и для небольшой зоны отдыха. К кабинету прилагается санузел с душем, гардеробная и небольшой холл, а также балкон. Столь удобное помещение можно легко превратить в еще одну комфортную спальню.
По телефону +7 (495) 175-30-42 вы сможете получить консультацию по любым вопросам, связанным с проектом 101-56, а также оформить покупку чертежей и сопутствующей документации.
Площадь:
342.44 м2Площадь:
343 м2Площадь:
343 м2Площадь:
345 м2Заполните формы ниже и наши специалисты свяжутся с вами в самое ближайшее время.
Заполните формы ниже и наши специалисты свяжутся с вами в самое ближайшее время.
Заполните формы ниже и наши специалисты свяжутся с вами в самое ближайшее время.
Заполните формы ниже и наши специалисты свяжутся с вами в самое ближайшее время.
Заполните формы ниже и наши специалисты свяжутся с вами в самое ближайшее время.