
Данный проект, как и любой другой готовый проект дома или коттеджа из нашего каталога, будет предоставлен Вам бесплатно при заказе строительства дома.
Также бесплатно при заключении договора:
Детальная смета
Выезд специалиста на объект, привязка к участку
Установка высотных отметок
ОСТАВИТЬ ЗАЯВКУДанный проект может быть изменен в соответствии с Вашими пожеланиями.
Мы готовы изменить размеры дома и оптимизировать планировки, подобрать оптимальные (другие) материалы, уменьшить или увеличить высоту этажей, добавить или убрать цокольный этаж, добавить террасу, балкой и многое другое.
Представляем проект красивого мансардного дома общей площадью 255 м2. Коттедж в европейском стиле рассчитан на семью из
Технические решения и дизайн
Более чем функциональными достоинствами, дом привлекает интересным экстерьером с классическими элементами. Отделка из светлого лицевого кирпича и штукатурки сама по себе красива и заслуживает внимания, однако акцент сделан на декоративных элементах. Окна с сандриками и рустовой окантовкой, входная терраса с аркадой, эркеры, кованые балконы, фасадные молдинги — формируют великолепный облик богато украшенного дома.
Коснемся конструктивной части проекта. Здание возводится на ленточном
Планировка
В цоколе находится вместительный гаражный бокс (45 м2), котельная, хозяйственные помещения и холл. Попасть в подвал можно по межэтажной лестнице или через въездные ворота гаража.
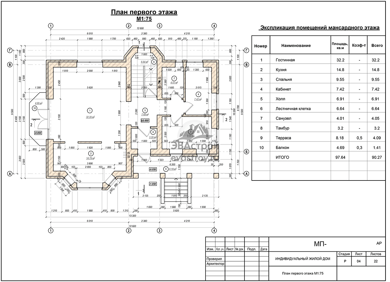
На первом этаже слева спроектирована гостиная с камином и полускрытая эркерная кухня. При желании помещения можно объединить, убрав разделяющие перегородки. По центру тянется холл, оканчивающийся межэтажной лестницей. В правой части также размещены жилые помещения — это спальня и кабинет. Дополняют обстановку санузел, холл и тамбур.
В мансарде три спальни с личными гардеробными и большой общий санузел. Пространство главной спальни обогащено эркером и балконом, общим для двух комнат. Холл небольшой, его площадь около 5 м2.
Понравился проект, и хотите приобрести чертежи? Сделать это можно онлайн, заполнив форму под кнопкой, после чего с вами свяжутся специалисты «Эвастрой» для уточнения условий сделки. Также вы можете обратиться по телефону
Площадь:
230 м2Площадь:
230 м2Площадь:
230.7 м2Заполните формы ниже и наши специалисты свяжутся с вами в самое ближайшее время.
Заполните формы ниже и наши специалисты свяжутся с вами в самое ближайшее время.
Заполните формы ниже и наши специалисты свяжутся с вами в самое ближайшее время.
Заполните формы ниже и наши специалисты свяжутся с вами в самое ближайшее время.
Заполните формы ниже и наши специалисты свяжутся с вами в самое ближайшее время.