
Данный проект, как и любой другой готовый проект дома или коттеджа из нашего каталога, будет предоставлен Вам бесплатно при заказе строительства дома.
Также бесплатно при заключении договора:
Детальная смета
Выезд специалиста на объект, привязка к участку
Установка высотных отметок
ОСТАВИТЬ ЗАЯВКУДанный проект может быть изменен в соответствии с Вашими пожеланиями.
Мы готовы изменить размеры дома и оптимизировать планировки, подобрать оптимальные (другие) материалы, уменьшить или увеличить высоту этажей, добавить или убрать цокольный этаж, добавить террасу, балкой и многое другое.
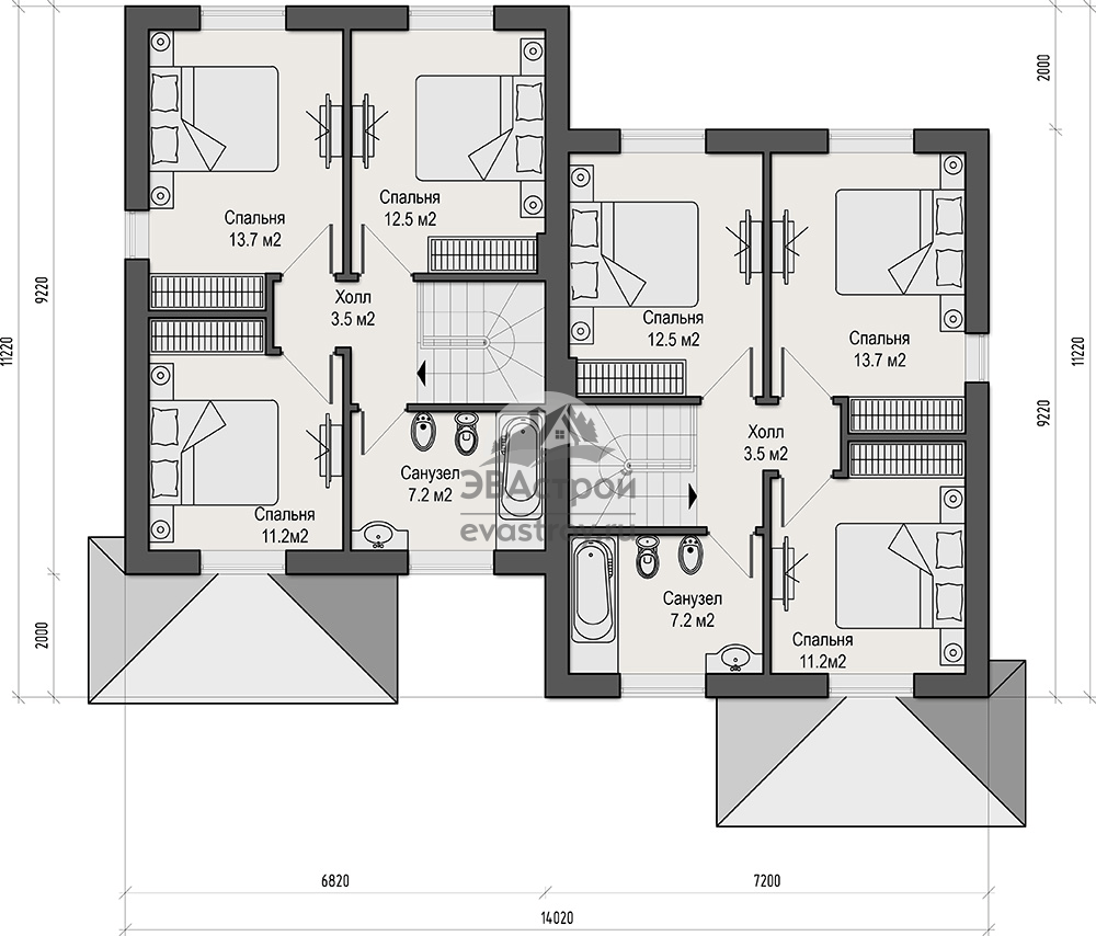
Простой по форме и исполнению двухэтажный дуплекс в европейском стиле общей площадью 210 м2. Квартиры расположены на двух уровнях, каждая с четырьмя спальнями,
Особенности и преимущества проекта
Технические решения и дизайн
Дом возводится из керамических блоков, на ленточном
Планировка
Дневная зона, расположенная на первом этаже, занимает площадь 29 м2. Из гостиной предусмотрен наружный выход — для террасы, которую будущие хозяева, возможно, захотят пристроить к задней части дома. При получении запроса специалисты «Эвастрой» выполнят необходимые расчеты для возведения крытой или открытой террасы. Тамбур, спальня и туалетная комната размещены во входной части дома.
На втором этаже каждой квартиры размещены три спальни и полноценный санузел с ванной. Комфорт использования санузла увеличивает окно, которое обеспечивает естественное освещение и возможность проветривания.
Несмотря на отсутствие гардеробной, проблемы с хранением личных вещей исключены, поскольку в спальнях предусмотрены вместительные хранилища, а в тамбуре — шкаф для верхней одежды. Вопрос отсутствия котельной легко решается установкой на кухне индивидуального газового котла.
Для покупки проекта 102–31 оставьте заявку на сайте или свяжитесь с менеджерами «Эвастрой» по контактному телефону
Площадь:
189.41 м2Площадь:
189.8 м2Площадь:
190 м2Площадь:
190 м2Заполните формы ниже и наши специалисты свяжутся с вами в самое ближайшее время.
Заполните формы ниже и наши специалисты свяжутся с вами в самое ближайшее время.
Заполните формы ниже и наши специалисты свяжутся с вами в самое ближайшее время.
Заполните формы ниже и наши специалисты свяжутся с вами в самое ближайшее время.
Заполните формы ниже и наши специалисты свяжутся с вами в самое ближайшее время.