
Данный проект, как и любой другой готовый проект дома или коттеджа из нашего каталога, будет предоставлен Вам бесплатно при заказе строительства дома.
Также бесплатно при заключении договора:
Детальная смета
Выезд специалиста на объект, привязка к участку
Установка высотных отметок
ОСТАВИТЬ ЗАЯВКУДанный проект может быть изменен в соответствии с Вашими пожеланиями.
Мы готовы изменить размеры дома и оптимизировать планировки, подобрать оптимальные (другие) материалы, уменьшить или увеличить высоту этажей, добавить или убрать цокольный этаж, добавить террасу, балкой и многое другое.
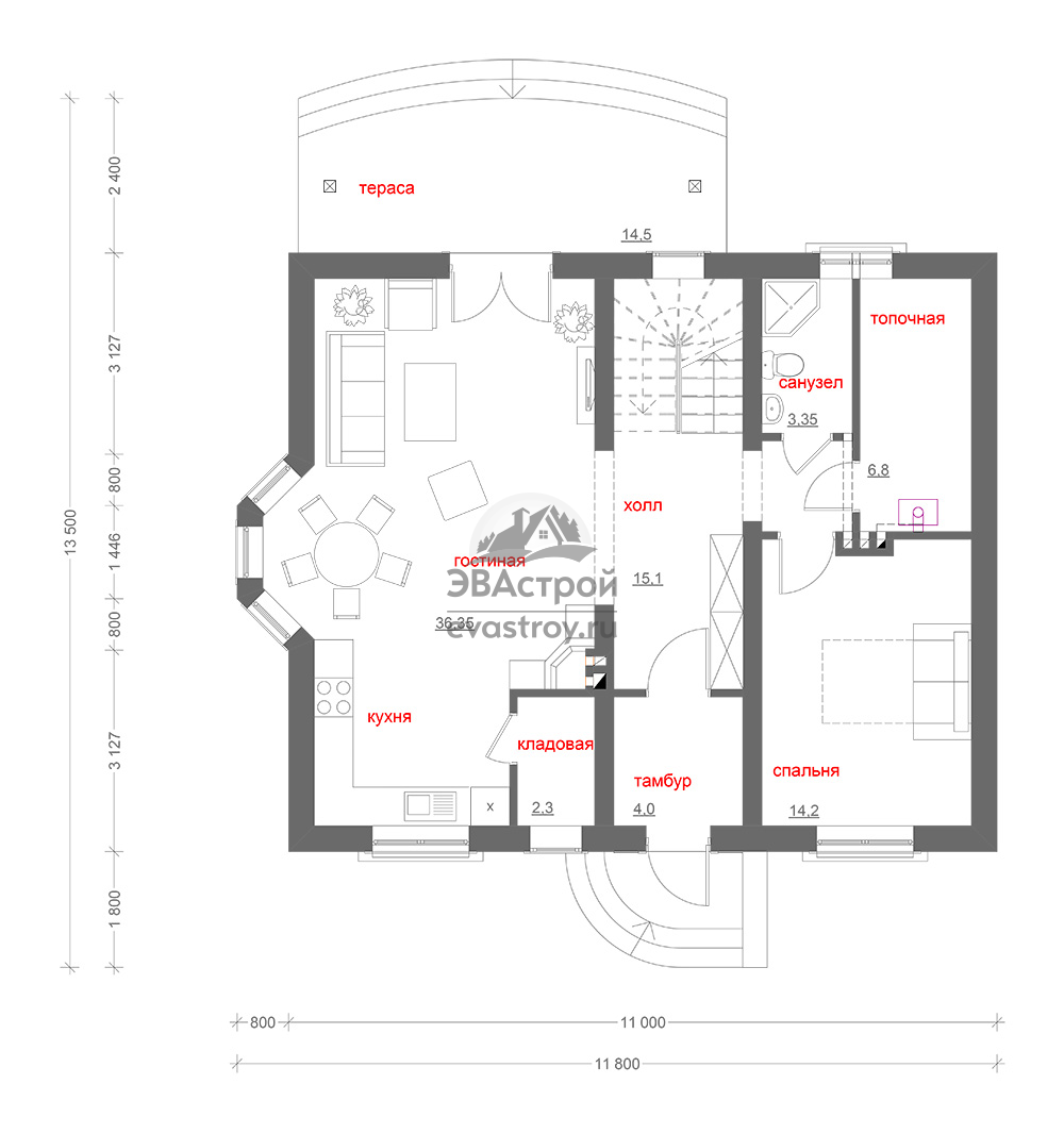
Дом из газобетона, с мансардой, для круглогодичного проживания. Общая площадь 161 м2, габариты 11.8×9.3 м, вместимость —
Технические решения и дизайн
Это капитальная постройка на ленточном
Ровную геометрию стен разнообразит трехгранный эркер на боковом фасаде. Отделка комбинированная: в оформлении нижнего яруса использован клинкерный кирпич в сочетании с камнем. Второй этаж окрашен бежевой штукатуркой, а границу зон обозначает белый межэтажный пояс.
Планировка
На первом уровне часто обустраивают спальню для пожилых родителей, чтобы минимизировать неудобства при передвижении по дому. Именно этот решение реализовано в данном проекте. Жилая комната площадью 14 м2 выходит окнами на передний фасад. Рядом расположен санузел, включающий душевую кабину, раковину, унитаз.
В общем помещении площадью 36 м2 разместились кухня и гостиная, а между ними, в эркере, удобно встал обеденный стол. На кухне поместился не только угловой рабочий гарнитур, но и кладовая — для хранения продуктовых запасов. Для отопления дома спроектирована топочная.
В мансарде запланирована спальня для хозяев дома и две детские комнаты. Все комнаты с балконом: у родителей — отдельный, у детей — общий. При желании одну из комнат легко превратить в рабочий кабинет. Еще одно помещение мансарды занимает санузел.
Строительная компания «Эвастрой» предлагает реализацию этого дома в европейском стиле «под ключ» в пределах Московского региона. На итоговую стоимость строительства влияет выбранная комплектация. При необходимости выполним корректировку представленного проекта.
Для покупки проекта 102–49 оставьте заявку на сайте или свяжитесь с менеджерами «Эвастрой» по контактному телефону
Площадь:
145 м2Площадь:
145 м2Площадь:
145 м2Площадь:
145 м2Заполните формы ниже и наши специалисты свяжутся с вами в самое ближайшее время.
Заполните формы ниже и наши специалисты свяжутся с вами в самое ближайшее время.
Заполните формы ниже и наши специалисты свяжутся с вами в самое ближайшее время.
Заполните формы ниже и наши специалисты свяжутся с вами в самое ближайшее время.
Заполните формы ниже и наши специалисты свяжутся с вами в самое ближайшее время.