
Данный проект, как и любой другой готовый проект дома или коттеджа из нашего каталога, будет предоставлен Вам бесплатно при заказе строительства дома.
Также бесплатно при заключении договора:
Детальная смета
Выезд специалиста на объект, привязка к участку
Установка высотных отметок
ОСТАВИТЬ ЗАЯВКУДанный проект может быть изменен в соответствии с Вашими пожеланиями.
Мы готовы изменить размеры дома и оптимизировать планировки, подобрать оптимальные (другие) материалы, уменьшить или увеличить высоту этажей, добавить или убрать цокольный этаж, добавить террасу, балкой и многое другое.
Загородный дом с мансардным этажом покоряет выразительным обликом, рожденным из сочетания простых геометрических форм, многоскатной крыши и классических отделочных материалов. Проект решен в европейском стиле и отлично подойдет для проживания небольших и средних семей.
Технические решения и дизайн
Здание выполнено в бежевых тонах, с добавлением белого и
Планировка
Вход защищен крышей гаража, которая стильным козырьком простирается над дверью. Первый этаж разделен небольшой лестницей на два уровня. Меньшая часть. Расположенная на нулевой отметке, занята тамбуром и большой прихожей (17 м2), часть которой можно отвести под гардеробную или санузел. Немного ниже располагается обширная гостиная (50 м2), с выходом на просторную крытую террасу (24 м2).
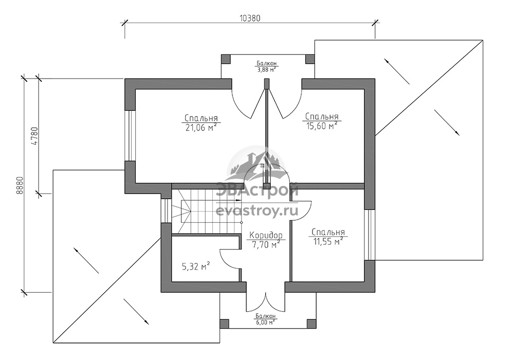
В мансарде — традиционная зона отдыха членов семьи. Здесь находятся три спальни (11 м2, 16 м2 и 21 м2), санузел (5 м2) и коридор (8 м2). Маленькие спальни можно оборудовать под детские. Коридор открывается на просторный общий балкон площадью 6 м2; две смежные спальни также имеют выход на совместный балкон площадью 4 м2.
Предлагаем оформить покупку проекта 102–70 через
Для покупки проекта 102–70 оставьте заявку на сайте или свяжитесь с менеджерами «Эвастрой» по контактному телефону
Площадь:
126.24 м2Площадь:
126.46 м2Площадь:
126.46 м2Заполните формы ниже и наши специалисты свяжутся с вами в самое ближайшее время.
Заполните формы ниже и наши специалисты свяжутся с вами в самое ближайшее время.
Заполните формы ниже и наши специалисты свяжутся с вами в самое ближайшее время.
Заполните формы ниже и наши специалисты свяжутся с вами в самое ближайшее время.
Заполните формы ниже и наши специалисты свяжутся с вами в самое ближайшее время.