
Данный проект, как и любой другой готовый проект дома или коттеджа из нашего каталога, будет предоставлен Вам бесплатно при заказе строительства дома.
Также бесплатно при заключении договора:
Детальная смета
Выезд специалиста на объект, привязка к участку
Установка высотных отметок
ОСТАВИТЬ ЗАЯВКУДанный проект может быть изменен в соответствии с Вашими пожеланиями.
Мы готовы изменить размеры дома и оптимизировать планировки, подобрать оптимальные (другие) материалы, уменьшить или увеличить высоту этажей, добавить или убрать цокольный этаж, добавить террасу, балкой и многое другое.
Одноэтажный дом 103–24 — это современное жилье с элементами традиционной европейской архитектуры. Это отличное место для постоянного или сезонного проживания семьи до 5 человек.
ТЕХНИЧЕСКИЕ РЕШЕНИЯ И ДИЗАЙН
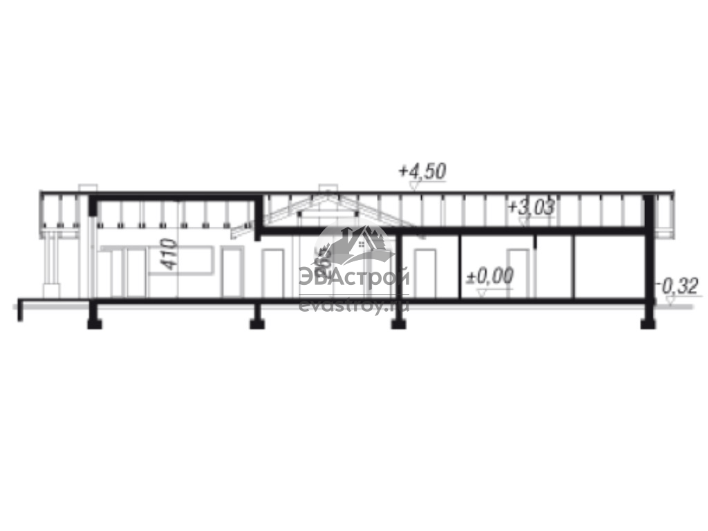
Проект разработан для возведения дома из керамических блоков; их отличные теплотехнические параметры позволяют минимизировать термоизоляцию, а в случае мягкого климата — вообще отказаться от нее. Фундамент для них требуется довольно скромный (в данном случае — ленточный железобетонный), а стены легко выдерживают не только вес черепичной кровли, но и монолитных железобетонных перекрытий. Общая площадь дома — 184 м2.
В основе цветового решения лежат два максимально контрастных цвета — красный для черепичной кровли и белый +
Солидная входная зона, образованная треугольным фронтоном с колоннами, четырехскатная кровля, сдержанный рисунок расстекловки, рустовка — благодаря этим выразительным деталям декора дом выглядит весьма презентабельно.
ПЛАНИРОВКА
Внутреннее дневное пространство плавно перетекает в угловую террасу, на которую открывается шикарный вид через панорамные окна гостиной и эркера. Телевизор размещен сбоку от камина, на уровне глаз; с дивана или кресел удобно любоваться живым огнем или просматривать любимые передачи.
Необычный дизайн — то, что легко создается при объединении
В приватной части дома запроектированы три удобные спальни. Кроме хозяйских покоев, в распоряжении жильцов двухместная и одноместная комнаты, которые могут принадлежать детям или родственникам. Общий санузел располагает гидромассажной ванной; благодаря небольшому окошку в нем светло и уютно.
Хозяйственные помещения выделены в отдельный блок при входе. Это котельная с выходом в тамбур, сам тамбур, и холл, ведущий либо в приватную, либо в общую часть дома. Также к хозяйственной зоне относится продуктовая кладовая при кухне.
Для покупки проекта 103–24 оставьте заявку на сайте или свяжитесь с менеджерами «Эвастрой» по контактному телефону
Площадь:
166 м2Площадь:
166 м2Площадь:
166 м2Заполните формы ниже и наши специалисты свяжутся с вами в самое ближайшее время.
Заполните формы ниже и наши специалисты свяжутся с вами в самое ближайшее время.
Заполните формы ниже и наши специалисты свяжутся с вами в самое ближайшее время.
Заполните формы ниже и наши специалисты свяжутся с вами в самое ближайшее время.
Заполните формы ниже и наши специалисты свяжутся с вами в самое ближайшее время.