
Данный проект, как и любой другой готовый проект дома или коттеджа из нашего каталога, будет предоставлен Вам бесплатно при заказе строительства дома.
Также бесплатно при заключении договора:
Детальная смета
Выезд специалиста на объект, привязка к участку
Установка высотных отметок
ОСТАВИТЬ ЗАЯВКУДанный проект может быть изменен в соответствии с Вашими пожеланиями.
Мы готовы изменить размеры дома и оптимизировать планировки, подобрать оптимальные (другие) материалы, уменьшить или увеличить высоту этажей, добавить или убрать цокольный этаж, добавить террасу, балкой и многое другое.
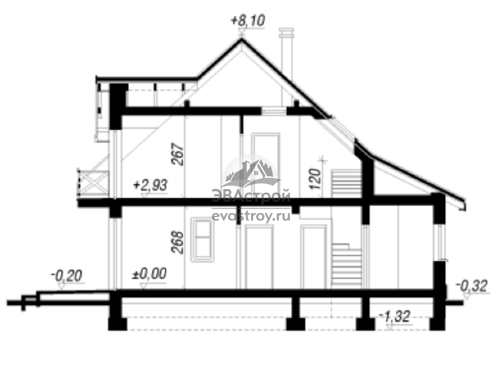
Построить дом быстро и качественно? Это реально, если использовать легкие и объемные керамические блоки, как в проекте 103–76, который мы и предлагаем вашему вниманию.
Этот красивый светлый дом площадью 130 м2 подойдет людям, которые ценят простоту и удобство. Он выстроен в традиционном европейском стиле со всеми сопутствующими атрибутами — непременным эркером, черепичной кровлей и фахверковыми балкончиками. На фото хорошо видно, как гармонично сочетается белая облицовка стен,
Особенностью проекта стала терраса, протянувшаяся вдоль садового фасада и удобные балконы. Заслуживают внимания высокие панорамные окна, а также оформление входной зоны. Массивная, сужающаяся кверху колонна подпирает удлиненный скат кровли, а вход на крыльцо оформлен в виде полуарки.
ПЛАНИРОВКА
Современная и эргономичная планировка рассчитана на постоянное проживание семьи из 4–5 человек. Тамбур и санузел с душем разместились в пристройке. Удобный холл ведет к студийной дневной зоне с большой гостиной, столовой и кухней. Несмотря на свободную планировку, границы помещений обозначены достаточно четко. Так, столовой отведено место в эркере, а кухню зонирует остров, частью которого стал камин.
За стеной гостиной обозначен кабинет — и окна обоих помещений открываются на террасу. Техническое помещение работает как котельная и постирочная. Лестница с кладовой по ней ведет в мансарду, предназначенную исключительно для ночной зоны. Здесь все просто: три спальни и общий санузел, где хватит места для всей необходимой сантехники. Украшением мансарды служат два балкона и слуховое окно над террасой.
Покупка проекта 103–76 станет отправной точкой в строительстве вашего дома. А чтобы стройка завершилась быстро и с максимальным качеством, закажите у нас услугу возведения дома под ключ. Ведение проекта одним застройщиком от разработки до сдачи объекта позволит сэкономить средства и сконцентрировать руководство процессом в единых руках.
Для покупки проекта 103–76 оставьте заявку на сайте или свяжитесь с менеджерами «Эвастрой» по контактному телефону
Площадь:
118 м2Площадь:
118 м2Площадь:
118 м2Площадь:
118 м2Заполните формы ниже и наши специалисты свяжутся с вами в самое ближайшее время.
Заполните формы ниже и наши специалисты свяжутся с вами в самое ближайшее время.
Заполните формы ниже и наши специалисты свяжутся с вами в самое ближайшее время.
Заполните формы ниже и наши специалисты свяжутся с вами в самое ближайшее время.
Заполните формы ниже и наши специалисты свяжутся с вами в самое ближайшее время.