Уважаемые посетители! На сайте размещено большое количество видео с YouTube. В настоящий момент часть роликов в РФ может открываться только через VPN. Мы постепенно дублируем видеоматериалы на Rutube. Приносим извинения за временные неудобства.


Купить проект Стоимость проекта: 37 000 руб.
Разделы проекта: АР, КР
Дополнительно можно заказать: паспорт проекта (?) за 5000 руб. и копию проекта за 2000 руб. и PDF копию проекта за 3000 руб.

Общая площадь: 238 м2;
Габариты дома: 14.3 x 14 м;
Этажность: 2 (вкл. Мансардный);
Фундамент: ленточный ж/б;
Материал стен: Керамические блоки ;
Перекрытия: монолитные ж/б;
Крыша: мансардная;
Кровля: керамическая черепица;
Фасад: штукатурка,камень;
Стиль: Европейский;
  • Гараж (1 место)
  • Терраса на 1-м этаже
  • Эркер
  • Балкон
  • Квадратный

Стоимость строительства дома не просчитана ЗАКАЖИТЕ СМЕТУ БЕСПЛАТНО
Нравится данный дом?

Данный проект, как и любой другой готовый проект дома или коттеджа из нашего каталога, будет предоставлен Вам бесплатно при заказе строительства дома.

Также бесплатно при заключении договора:

Детальная смета

Выезд специалиста на объект, привязка к участку

Установка высотных отметок

ОСТАВИТЬ ЗАЯВКУ

Данный проект может быть изменен в соответствии с Вашими пожеланиями.

Мы готовы изменить размеры дома и оптимизировать планировки, подобрать оптимальные (другие) материалы, уменьшить или увеличить высоту этажей, добавить или убрать цокольный этаж, добавить террасу, балкой и многое другое.

Готовый проект 104-32

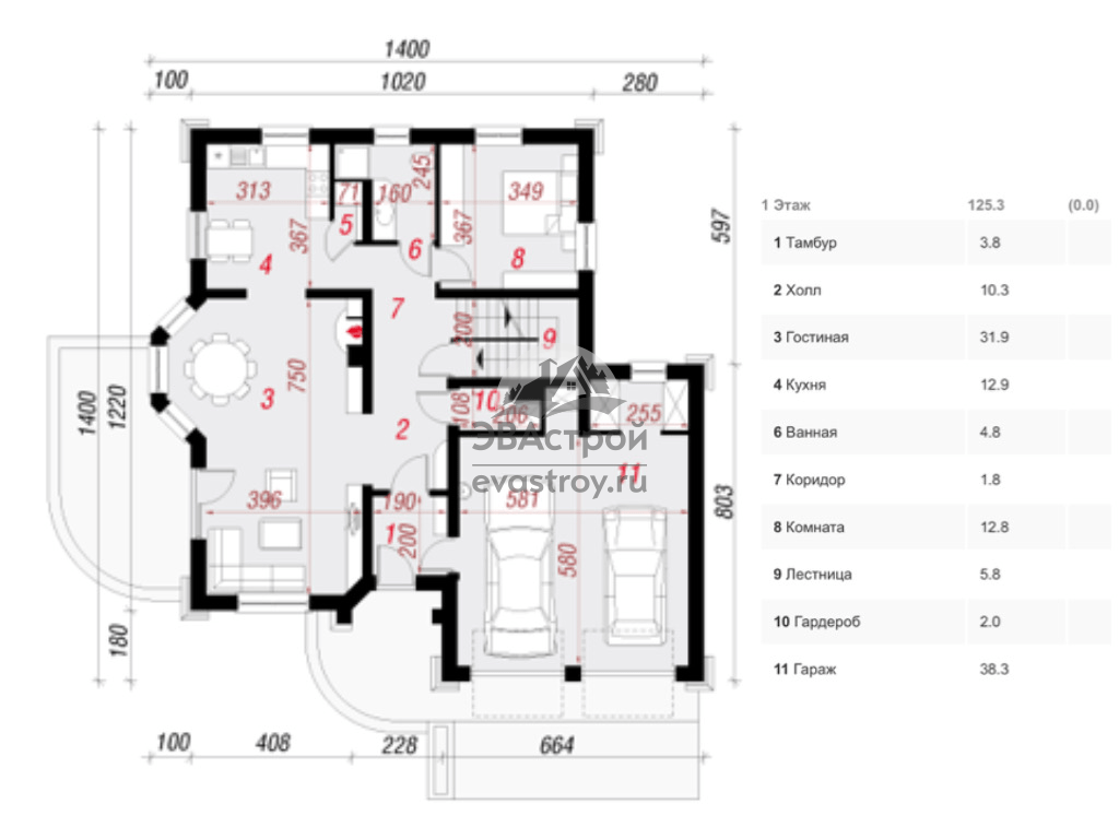
Красивый мансардный дом для семьи из 4-5 человек понравится ценителям европейской загородной архитектуры. Но также он будет интересен и автолюбителям, ведь в нем предусмотрен вместительный гараж для двух автомобилей. Конструктивные решения: фундамент — ленточный железобетонный, стены из керамических блоков, монолитные железобетонные перекрытия и кровля из керамической черепицы. Особенности проекта: • Классическая форма и красивый дизайн: • Площадь 238 м2, габариты — 14.3 x 14 м • Один основной этаж + жилая мансарда • Комфорт мансарды увеличивают высокие окна с фронтонами; они увеличивают высоту стен и служат хорошим источником дневного света • Гараж примыкает к передней части дома, поэтому проект особенно удобен для владельцев участков с въездом с юга. Украшает дом одноэтажный эркер, полуарочный вход с колоннами, кованые балконы и рустовка на углах. Отделка стен — штукатуркой, цоколя — декоративным камнем. Планировка В проекте заложено три входа. Основной — с крыльца через тамбур. Второй — из гостиной на террасу. Третий — из гаража с бокового фасада. Жилую площадь первого этажа формируют: • Большая гостиная-столовая. В видеозоне расположен настенный телевизор и диванная группа. Двустворчатое панорамное окно открывается на террасу. Круглый обеденный стол занял остекленную эркерную нишу, а напротив стола — камин, который создаст волшебную атмосферу во время вечерней трапезы. • Удобная кухня, частично отгороженная от дневного пространства. Рабочий гарнитур дополняет барная стойка, удобная как рабочая поверхность и в качестве обеденного стола. А для хранения продуктов предусмотрена маленькая кладовка. • Дополнительная спальня — может служить гостевой, рядом с ней размещен санузел. Несмотря на то, что кухня на плане расположена на противоположном от входа фасаде, попасть в нее можно по коридору, не превращая гостиную в проходную зону. Вход в котельную-постирочную — из холла, в гараж — из тамбура. В мансарду поднимаемся по двухуровневой лестнице. Здесь, в частной зоне, спроектирована мастер-спальня с личным санузлом и гардеробной, две детские и общая ванная. Одна из детских соединена с комнатой отдыха над гаражом, которую авторы проекта видят как спортзал. Любые вопросы по проекту 104-32 вы можете задать, связавшись с менеджерами «Эвастрой» по указанным на сайте контактам.

Другие проекты домов по площади

ВЕРНУТЬСЯ К РЕЗУЛЬТАТАМ ПОИСКА