
Данный проект, как и любой другой готовый проект дома или коттеджа из нашего каталога, будет предоставлен Вам бесплатно при заказе строительства дома.
Также бесплатно при заключении договора:
Детальная смета
Выезд специалиста на объект, привязка к участку
Установка высотных отметок
ОСТАВИТЬ ЗАЯВКУДанный проект может быть изменен в соответствии с Вашими пожеланиями.
Мы готовы изменить размеры дома и оптимизировать планировки, подобрать оптимальные (другие) материалы, уменьшить или увеличить высоту этажей, добавить или убрать цокольный этаж, добавить террасу, балкой и многое другое.
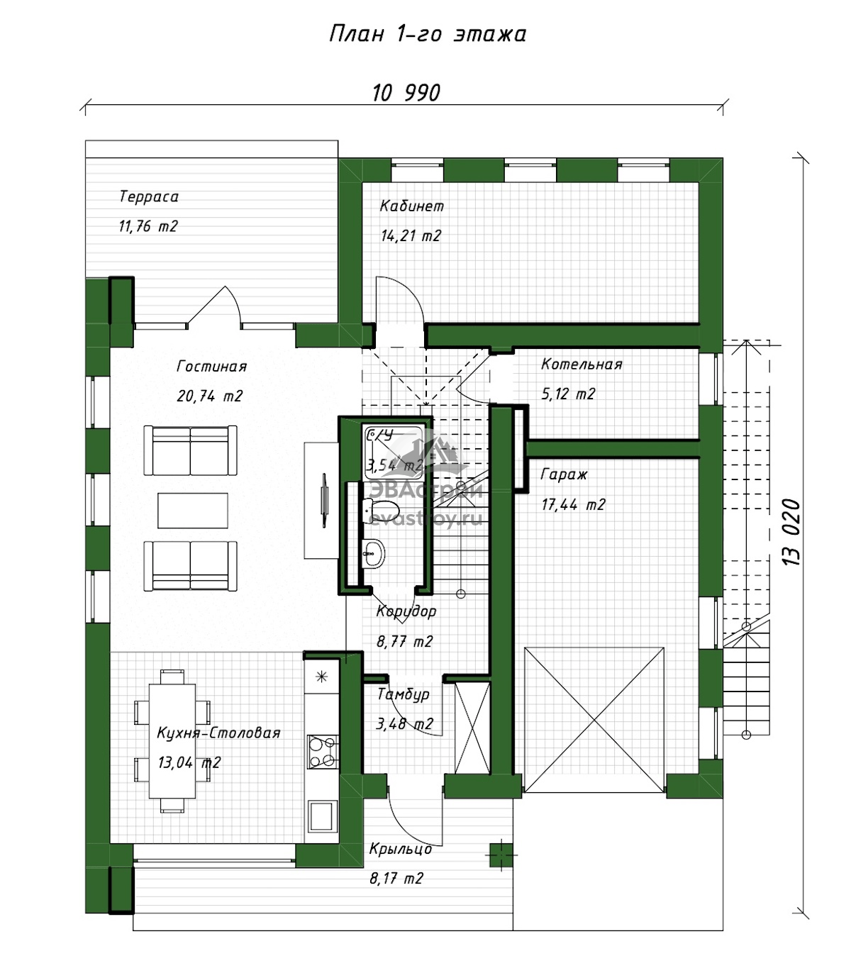
Элегантный двухэтажный коттедж от компании «Эвастрой» спроектирован в стиле хай-тек и является ярким представителем современных архитектурных тенденций. Это предложение для небольшой семьи из 3-х человек. Общая площадь дома 195 м2, габариты 11.8 x 13 м.
Дом выполнен в двух этажах. Строгие линии и четкие пропорции придают его образу одновременно гармонию и динамику. В отделке использовано сочетание различных по фактуре материалов. Объемное решение и конструкции подчеркнуты с помощью светлой штукатурки и более темной клинкерной плитки.
У коттеджа плоская, частично эксплуатируемая крыша с ПВХ-мембраной — на ней расположена просторная терраса. Еще одна небольшая терраса предусмотрена на первом этаже. Панорамные окна перекликаются с прозрачными ограждениями, что вкупе со светлой отделкой создает легкий и воздушный образ дома.
В конструктивной части указаны стены из газобетона 400 и комбинированный свайно-ростверковый фундамент с монолитной плитой перекрытий. Крыльцо и гаражные ворота на главном фасаде. Крыльцо 8 м2, с углубленной входной частью.
На первом этаже расположены:
На втором этаже 2 спальни (16,6 м2, 16,7 м2) и общий санузел с душем (6 м2), где также предусмотрено большое окно. Из коридора открыт выход на просторную террасу (43 м2). По отдельной наружной лестнице с террасы можно спуститься на участок.
Для покупки проекта оставьте заявку на сайте или свяжитесь с менеджерами «Эвастрой» по контактному телефону +7 (495) 175-30-42.
Площадь:
175.26 м2Площадь:
175.3 м2Площадь:
175.74 м2Заполните формы ниже и наши специалисты свяжутся с вами в самое ближайшее время.
Заполните формы ниже и наши специалисты свяжутся с вами в самое ближайшее время.
Заполните формы ниже и наши специалисты свяжутся с вами в самое ближайшее время.
Заполните формы ниже и наши специалисты свяжутся с вами в самое ближайшее время.
Заполните формы ниже и наши специалисты свяжутся с вами в самое ближайшее время.