Уважаемые посетители! На сайте размещено большое количество видео с YouTube. В настоящий момент часть роликов в РФ может открываться только через VPN. Мы постепенно дублируем видеоматериалы на Rutube. Приносим извинения за временные неудобства.


Купить проект Стоимость проекта: 73 000 руб.
Разделы проекта: АР(архитектурный раздел),КР(конструктивный раздел)
Дополнительно можно заказать: и копию проекта за 2000 руб. и PDF копию проекта за 3000 руб.

Общая площадь: 768.9 м2;
Габариты дома: 21.24 x 18 м;
Этажность: 3 (вкл. Цокольный);
Фундамент: монолитная плита;
Материал стен: Кирпич ;
Перекрытия: сборные;
Крыша: мансардная;
Кровля: мягкая черепица или листовая медь;
Фасад: штукатурка, фасадная плитка;
Стиль: Барокко;
  • Сауна
  • Терраса на 1-м этаже
  • Второй свет
  • Эркер
  • Балкон
  • Тренажерный зал
  • Кабинет
  • Библиотека
  • Зимний сад

Стоимость строительства дома не просчитана ЗАКАЖИТЕ СМЕТУ БЕСПЛАТНО
Нравится данный дом?

Данный проект, как и любой другой готовый проект дома или коттеджа из нашего каталога, будет предоставлен Вам бесплатно при заказе строительства дома.

Также бесплатно при заключении договора:

Детальная смета

Выезд специалиста на объект, привязка к участку

Установка высотных отметок

ОСТАВИТЬ ЗАЯВКУ

Данный проект может быть изменен в соответствии с Вашими пожеланиями.

Мы готовы изменить размеры дома и оптимизировать планировки, подобрать оптимальные (другие) материалы, уменьшить или увеличить высоту этажей, добавить или убрать цокольный этаж, добавить террасу, балкой и многое другое.

Готовый проект EV-6

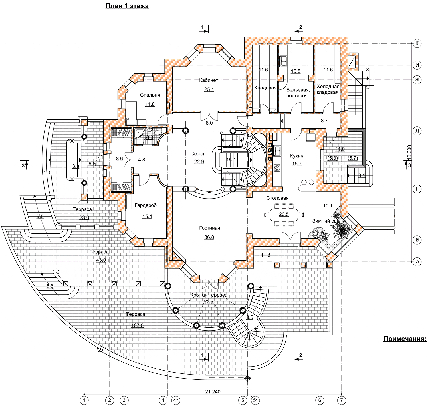
Особняк в стиле барокко, общей площадью 768 м2, выглядит как мини-дворец. Трехэтажное здание с нижним цокольным ярусом прекрасно снаружи и изнутри. Рассчитано для строительства на участке с уклоном. В доме запланировано: 7 спален; Второй свет; Обширные двухуровневые террасы; 3 балкона на втором этаже; Комплекс помещений для полноценного отдыха; Возможность работы из дома (кабинет, библиотека). Технические решения, дизайн Здание возводится из кирпича, на монолитно-плитном фундаменте, со сборными перекрытиями. Фасады отделаны штукатуркой и фасадной плиткой, для кровли возможна мягкая черепица или листовая медь. Отличительные черты экстерьера — мансардная крыша с крутыми уклонами, полукруглая крытая терраса; эркеры; разнообразные окна (овальные, прямоугольные, восьмиугольные, арочные), треугольные и арочные фронтоны, колонны, просторные балконы. В композицию главного фасада входит крыльцо с четырехколонным портиком, широкий балкон и арочный полуфронтон с узорным тимпаном. Венчает дом ротонда со шпилем. Планировка В цоколе размещено: Досуговая зона (тренажерный зал, комната отдыха, сауна, турецкая баня, SPA); Большой зал с библиотекой и ТВ. Отсюда есть выход на крытую террасу. Далее можно пройти на открытую террасу или на террасу верхнего уровня; Спальня с санузлом. Здесь может проживать работающий в доме персонал; Хозпомещения. На первом этаже найдем двусветную гостиную, столовую с зимним садом, кухню, кабинет, спальню (удобна как гостевая), комнату для ухода за бельем. Поблизости от кухни удобно расположены две продуктовые кладовки, в том числе одна с холодным режимом. У входа тамбур, просторная светлая гардеробная и санузел. Гостиная и столовая выходят на крытую террасу. В центре холл с полукруглой лестницей, связывающей все ярусы дома. На втором этаже пять спален, четыре санузла и три балкона. Максимальный функционал предусмотрен для мастер-спальни — большая комната (30,6 м2), просторная ванная, гардеробная и балкон. Пространство над гостиной лишено межэтажной перегородки для достижения эффекта второго света. Для покупки проекта оставьте заявку на сайте или свяжитесь с менеджерами «Эвастрой» по контактному телефону +7 (495) 175-30-42.

Другие проекты домов по площади

ВЕРНУТЬСЯ К РЕЗУЛЬТАТАМ ПОИСКА