
Данный проект, как и любой другой готовый проект дома или коттеджа из нашего каталога, будет предоставлен Вам бесплатно при заказе строительства дома.
Также бесплатно при заключении договора:
Детальная смета
Выезд специалиста на объект, привязка к участку
Установка высотных отметок
ОСТАВИТЬ ЗАЯВКУДанный проект может быть изменен в соответствии с Вашими пожеланиями.
Мы готовы изменить размеры дома и оптимизировать планировки, подобрать оптимальные (другие) материалы, уменьшить или увеличить высоту этажей, добавить или убрать цокольный этаж, добавить террасу, балкой и многое другое.
Просторный двухэтажный дом в стиле барнхаус (320 м2) — отличный выбор для комфортного проживания с двумя детьми и приема гостей. Лаконичное решение позволило продумать экстерьер на все сто процентов: дом гармонично сочетается как с природным окружением, так и с городской жизнью.
Особенности проекта: 3 спальни, огромные гостиная и
Выглядит дом очень солидно: особенно впечатляет огромное пятиугольное окно на главном фасаде. По центру заднего фасада тянется широкая каминная труба; здесь располагается терраса с камином и просторный балкон. Слева к дому пристроен гараж, крыша которого также превращена в террасу. Входная группа представлена углубленным крыльцом, занимающим правый угол главного фасада.
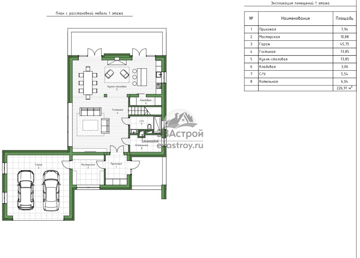
С крыльца входим в прихожую 8 м2, оттуда через боковую дверь в мастерскую 11 м2 и далее в гараж 46 м2.
За прихожей находится роскошная двусветная гостиная 84 м2, а за ней такого же размера
На втором этаже видим родительскую спальню, с санузлом, гардеробной и террасой над гаражом (43 м2), которая находится в полном распоряжении хозяев. Для детей предусмотрены две
Для покупки проекта
Площадь:
289 м2Площадь:
290 м2Площадь:
290.94 м2Заполните формы ниже и наши специалисты свяжутся с вами в самое ближайшее время.
Заполните формы ниже и наши специалисты свяжутся с вами в самое ближайшее время.
Заполните формы ниже и наши специалисты свяжутся с вами в самое ближайшее время.
Заполните формы ниже и наши специалисты свяжутся с вами в самое ближайшее время.
Заполните формы ниже и наши специалисты свяжутся с вами в самое ближайшее время.