Уважаемые посетители! На сайте размещено большое количество видео с YouTube. В настоящий момент часть роликов в РФ может открываться только через VPN. Мы постепенно дублируем видеоматериалы на Rutube. Приносим извинения за временные неудобства.


Купить проект Стоимость проекта: 40 000 руб.
Разделы проекта: АР(архитектурный раздел), КР(конструктивный раздел)
Дополнительно можно заказать: паспорт проекта (?) за 5000 руб. и копию проекта за 2000 руб. и PDF копию проекта за 3000 руб.

Общая площадь: 188 м2;
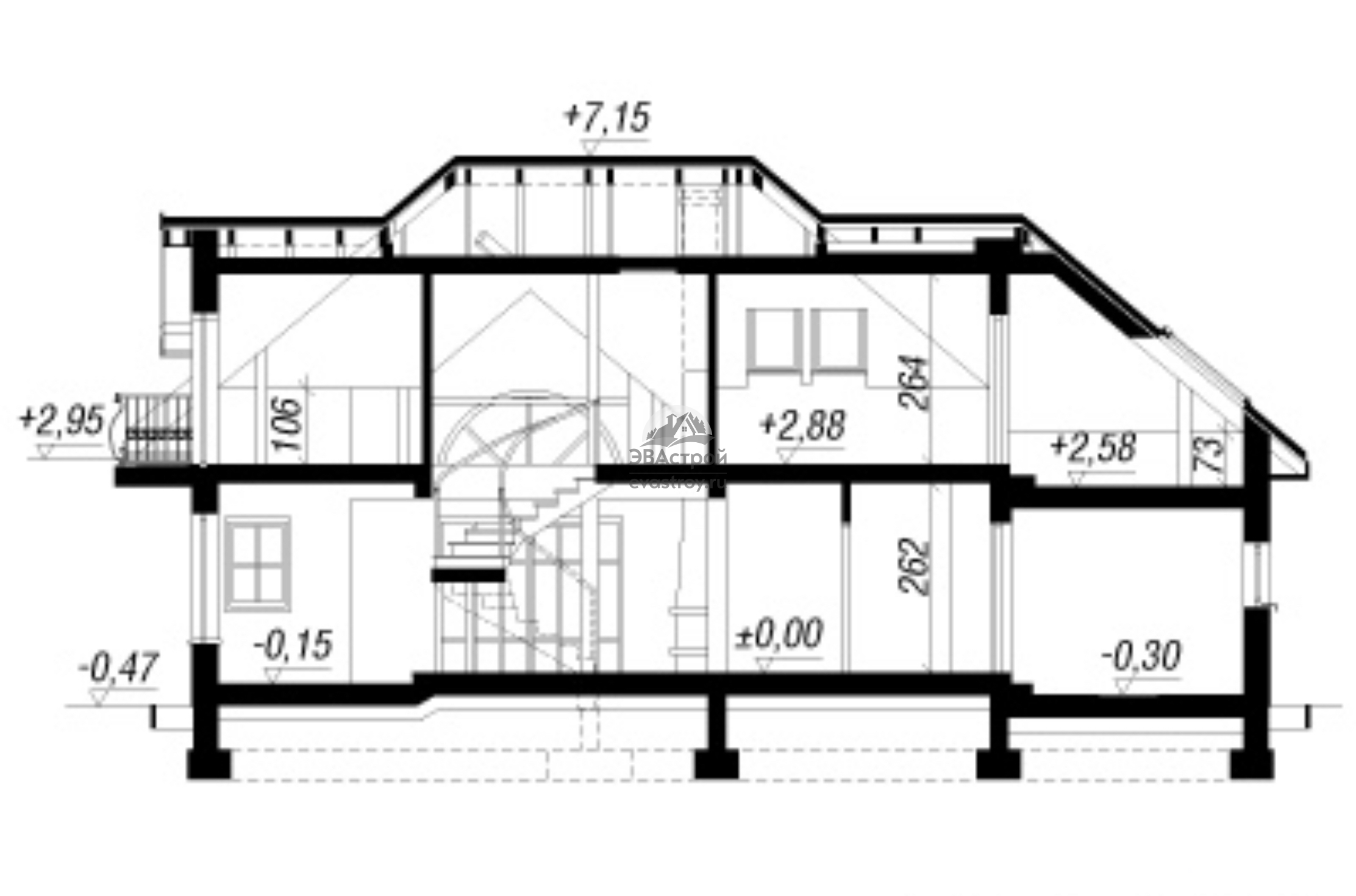
Габариты дома: 14.9 x 11.26 м;
Этажность: 2 (вкл. Мансардный);
Фундамент: ленточный ж/б;
Материал стен: Пористый бетон ;
Перекрытия: монолитные ж/б;
Крыша: мансардная ;
Кровля: керамическая черепица ;
Фасад: пористый бетон 24 см, пенопласт 12 см, штукатурка;
Стиль: Европейский;
  • Гараж (1 место)
  • Терраса на 1-м этаже
  • Балкон
  • Для узкого участка

Стоимость строительства дома не просчитана ЗАКАЖИТЕ СМЕТУ БЕСПЛАТНО
Нравится данный дом?

Данный проект, как и любой другой готовый проект дома или коттеджа из нашего каталога, будет предоставлен Вам бесплатно при заказе строительства дома.

Также бесплатно при заключении договора:

Детальная смета

Выезд специалиста на объект, привязка к участку

Установка высотных отметок

ОСТАВИТЬ ЗАЯВКУ

Данный проект может быть изменен в соответствии с Вашими пожеланиями.

Мы готовы изменить размеры дома и оптимизировать планировки, подобрать оптимальные (другие) материалы, уменьшить или увеличить высоту этажей, добавить или убрать цокольный этаж, добавить террасу, балкой и многое другое.

Готовый проект LG-56

Красивый мансардный дом для узкого участка подойдет семье из 4-5 человек. Его главной особенностью является эффектный интерьер первого яруса, но также заслуживают внимания: встроенный гараж с антресолью; дополнительная спальня на первом этаже; открытая угловая терраса. Внешний вид Здание отличается классической формой и традиционной отделкой. На заднем фасаде выделяется выступающий объем гостиной с большим арочным окном. Окна люкарен и свод входного колонного портика перекликаются между собой одинаковой полуарочной формой. Фасады решены в белом цвете, кровля же имеет теплый коричневый оттенок. Технические решения Общая площадь — 188 м2, габариты — 14.9 x 11.26 м; Наружные стены — из пористого бетона (24 см), с утеплителем-пенопластом (12 см) и отделкой штукатуркой; Фундамент — ленточно-железобетонный; Межэтажные перекрытия — монолитная железобетонная плита; Крыша мансардная, кровельное покрытие — керамическая черепица; Высота потолков: 1-й этаж — 262 см, 2-й этаж — 264 см. Высота мансардной стены 106 см. Планировка На входе встречает широкий тамбур, боковые стенки которого удобно занять под вешалки и обувные полки. Первый этаж характеризуют открытость и обилие света. Дневная зона выглядит очень привлекательно благодаря двусветной гостиной, разноуровневому полу, опорной колонне и полукруглой центральной лестнице. В общее жилое пространство интегрированы также открытая кухня и холл. Дополнительная комната — прекрасная удобная гостевая. Санузел с душем расположены у входа. Хозяйственная часть — котельная-прачечная и одноместный гараж. Личная зона жильцов расположена в мансарде и состоит из трех спален, общей ванной и гардеробной. Комнаты объединяет просторный холл с видом на гостиную и сад, в нем можно установить пару кресел и использовать пространство как дополнительную зону отдыха. Команда «Эвастрой» предлагает свои услуги в возведении данного дома «под ключ». Обсудить детали реализации проекта можно по контактному телефону +7 (495) 175-30-42.

Другие проекты домов по площади

ВЕРНУТЬСЯ К РЕЗУЛЬТАТАМ ПОИСКА