Купить проект Стоимость проекта: 39 000 руб.
Разделы проекта: В проекте есть основные архитектурные чертежи и кровля
Дополнительно можно заказать: и копию проекта за 2000 руб. и PDF копию проекта за 3000 руб.

Общая площадь: 612 м2;
Габариты дома: 15.6 x 18.3 м;
Этажность: 4 (вкл. Цокольный и Мансардный);
Фундамент: монолитная ж/б плита;
Материал стен: Кирпич ;
Перекрытия: монолитные ж/б ;
Крыша: скатная;
Кровля: чердачная (утеплённая), с деревянными стропилами по металлическим балкам;
Фасад: натуральный камень;
Стиль: Барокко;
  • Терраса на 1-м этаже
  • Второй свет
  • Эркер
  • Балкон
  • Тренажерный зал
  • Кабинет
  • Зимний сад

Стоимость строительства дома не просчитана ЗАКАЖИТЕ СМЕТУ БЕСПЛАТНО
Нравится данный дом?

Данный проект, как и любой другой готовый проект дома или коттеджа из нашего каталога, будет предоставлен Вам бесплатно при заказе строительства дома.

Также бесплатно при заключении договора:

Детальная смета

Выезд специалиста на объект, привязка к участку

Установка высотных отметок

ОСТАВИТЬ ЗАЯВКУ

Данный проект может быть изменен в соответствии с Вашими пожеланиями.

Мы готовы изменить размеры дома и оптимизировать планировки, подобрать оптимальные (другие) материалы, уменьшить или увеличить высоту этажей, добавить или убрать цокольный этаж, добавить террасу, балкой и многое другое.

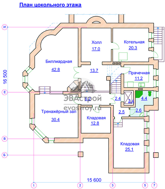
Четырехуровневый дом в стиле барокко — это престижный загородный особняк для тех, кто не привык довольствоваться малым. В нем два этажа, мансарда и цоколь, а также множество помещений для комфорта семьи из трех человек и гостей. Подходит для участков с небольшой неровностью грунта. Особенности проекта: мансарда, цоколь, 4 спальни, второй свет, кабинет, зимний сад, тренажерный зал, бильярдная, учебно-игровая комната, террасы на 1-м и 2-м этажах, 3 балкона, 2 камина, мастер-спальня. Технические характеристики Общая площадь — 612 м2 Габариты дома — 15.60×18.30 м Фундамент — монолитная ж/б плита Материал стен — полнотелый кирпич Перекрытия — монолитные ж/б Крыша — скатная Кровля — чердачная (утеплённая), с деревянными стропилами по металлическим балкам Фасадная отделка — натуральный камень Дизайн Дом с золотисто-желтыми фасадами выглядит теплым и жизнерадостным. Еще один яркий штрих — кровля: многоскатная и многощипцовая, с конусом и фигуркой-флюгером. А кроме того: высокий каменный цоколь, двусветное арочное окно, разноформатные окна, а на заднем фасаде — полукруглый зимний сад с верхней террасой, а также просторная терраса первого этажа. Крыльцо углубленное, с высокими ступенями. Планировка В цоколе находится тренажерный зал 30.4 м2 и бильярдная с камином 42,8 м2. А также хоз. помещения — котельная, прачечная, кладовые. Первый этаж включает двусветную эркерную гостиную с камином 44,4 м2, большую столовую 40 м2 с прилегающим зимним садом 19,3 м2 и просторный кабинет 30 м2. Компактная П-образная кухня 11.2 м2 расположена в незаметной нише. На входе вместительная прихожая 13,3 м2 с большими удобными шкафами и диваном для обувания. Из холла по лестнице можно попасть на любой уровень дома; а несколько ступенек и колонны отделяют холл от столовой. Также из холла можно пройти в гараж. На втором этаже спальни: родительская с отдельными санузлом и гардеробной, детская с учебно-игровой и гостевая. К детской и гостевой прилагаются балконы, к мастер-спальне — большая терраса. Еще один балкон доступен из холла. В мансарде размещены еще одна гостевая, тренажерный зал 50 м2 с санузлом и холл 26,8 м2. Все подробности проекта LK-129 можно уточнить по телефону +7 (495) 175-30-40 с 09:00 до 19:00 по Москве. Бесплатный звонок по России — 8 (800) 350-03-23. Для приобретения проекта оставьте заявку на сайте.

Другие проекты домов по площади

ВЕРНУТЬСЯ К РЕЗУЛЬТАТАМ ПОИСКА