Уважаемые посетители! На сайте размещено большое количество видео с YouTube. В настоящий момент часть роликов в РФ может открываться только через VPN. Мы постепенно дублируем видеоматериалы на Rutube. Приносим извинения за временные неудобства.


Купить проект Стоимость проекта: 42 400 руб.
Разделы проекта: АР(архитектурный раздел), КР(конструктивный раздел)
Дополнительно можно заказать: и копию проекта за 2000 руб. и PDF копию проекта за 3000 руб.

Общая площадь: 164.95 м2;
Габариты дома: 12.57 x 13 м;
Этажность: 1 ;
Фундамент: монолитная фундаментная плита;
Материал стен: Газобетон ;
Перекрытия: монолитная плита;
Крыша: двухскатная;
Кровля: гибкая черепица;
Фасад: декоративная штукатурка;
Стиль: Европейский;
  • Терраса на 1-м этаже
  • Балкон

Стоимость строительства дома не просчитана ЗАКАЖИТЕ СМЕТУ БЕСПЛАТНО
Нравится данный дом?

Данный проект, как и любой другой готовый проект дома или коттеджа из нашего каталога, будет предоставлен Вам бесплатно при заказе строительства дома.

Также бесплатно при заключении договора:

Детальная смета

Выезд специалиста на объект, привязка к участку

Установка высотных отметок

ОСТАВИТЬ ЗАЯВКУ

Данный проект может быть изменен в соответствии с Вашими пожеланиями.

Мы готовы изменить размеры дома и оптимизировать планировки, подобрать оптимальные (другие) материалы, уменьшить или увеличить высоту этажей, добавить или убрать цокольный этаж, добавить террасу, балкой и многое другое.

Внимание в данном коттедже привлекает просторная 63-метровая терраса, идеально подходящая для большой компании. Помимо этого, имеются четыре уютные спальни, одна из которых сделана специально для гостей. Созданное в европейском стиле, это жилище идеально подойдет для семьи с двумя детьми, как для сезонного, так и для круглогодичного проживания.

Особенности и преимущества проекта

  • Геометрически простая конструкция, что означает — дом несложен в возведении;
  • Большая терраса с перголой;
  • Четыре спальни, в том числе две детские;
  • Мастер-спальня с балконом, санузлом и гардеробной;
  • Встроенная бойлерная.

Технические решения, дизайн

Общая площадь составляет 164.95 м2.

Габариты составляют 12.57 метра в ширину и 13 метров в длину.

Этажность: Дом имеет один этаж и мансарду.

Фундамент выполнен в виде монолитной фундаментной плиты, обеспечивающей надежную и прочную основу для строения.

Материал стен — газобетон, который отличается отличной теплоизоляцией, прочностью и долговечностью.

Перекрытия сделаны из монолитной плиты, что обеспечивает жесткость и надежность конструкции.

Крыша имеет практичную двухскатную форму.

Для кровли используется гибкая черепица, которая отлично защищает от влаги и ветра, а также придает дому эстетическую привлекательность.

Фасады оформлены с участием декоративной штукатурки. Этот вид отделки, кроме эстетики, обеспечивает дополнительную защиту стен от погодных условий и сохраняет их в первоначальном состоянии на протяжении долгого времени.

Планировка

На первом этаже здания имеется выделенный угол для влажных помещений — бойлерной и санузлов обоих этажей. Это позволяет эффективно организовать водоснабжение и санитарные услуги в доме.

Общая зона весьма просторная, состоящая из гостиной и кухни; особенной ее делает высокое двустворчатое окно с выходом на террасу. Такое решение обеспечивает свет и свежий воздух в помещении, а также создает ощущение простора.

Кухня достаточно вместительная, имеющая площадь 15 м2. Помимо угловой рабочей зоны, в нее легко поместится 6-местный обеденный стол. Это позволяет с комфортом принимать гостей и проводить общественные мероприятия в этой зоне.

На первом этаже также расположена гостевая спальня, площадью 11,6 м2. Она отделена от хозяйственных помещений специальной лестничной нишей. Гости или жильцы смогут отдыхать в комфортной и спокойной обстановке.

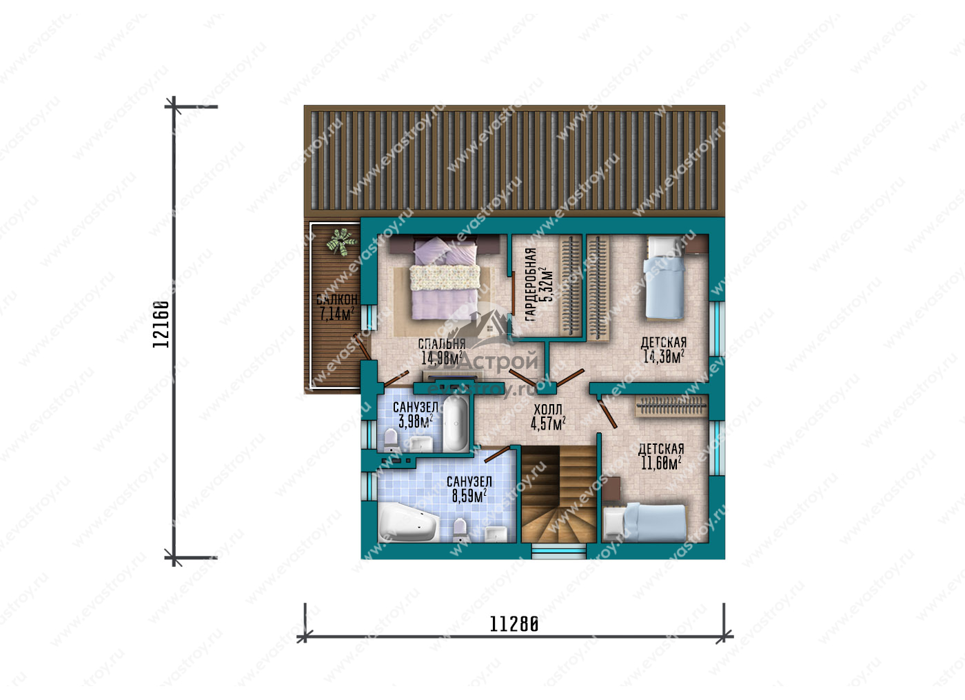
Мастер-спальня и детские комнаты находятся на мансарде. К мастер-спальне, помимо основной комнаты, прилагается гардеробная и санузел, а также балкон. Это обеспечивает приватность и комфорт для взрослых.

Для детей также предусмотрены отдельные комнаты на мансарде. Одна из них имеет площадь 14,3 м2, а другая — 11,6 м2. то обеспечивает достаточно места и комфорта для детей, чтобы играть и отдыхать. Кроме того, есть отдельный санузел площадью 8,6 м2. Э

Для покупки проекта LK-93 оставьте заявку на сайте или свяжитесь с менеджерами ЭВАстрой по контактному телефону +7 (495) 175-30-42. При заказе строительства в ЭВАстрой вы получаете бесплатно: документацию на проект, исследование участка, привязку к местности, детальную смету.

Другие проекты домов по площади

ВЕРНУТЬСЯ К РЕЗУЛЬТАТАМ ПОИСКА