
Данный проект, как и любой другой готовый проект дома или коттеджа из нашего каталога, будет предоставлен Вам бесплатно при заказе строительства дома.
Также бесплатно при заключении договора:
Детальная смета
Выезд специалиста на объект, привязка к участку
Установка высотных отметок
ОСТАВИТЬ ЗАЯВКУДанный проект может быть изменен в соответствии с Вашими пожеланиями.
Мы готовы изменить размеры дома и оптимизировать планировки, подобрать оптимальные (другие) материалы, уменьшить или увеличить высоту этажей, добавить или убрать цокольный этаж, добавить террасу, балкой и многое другое.
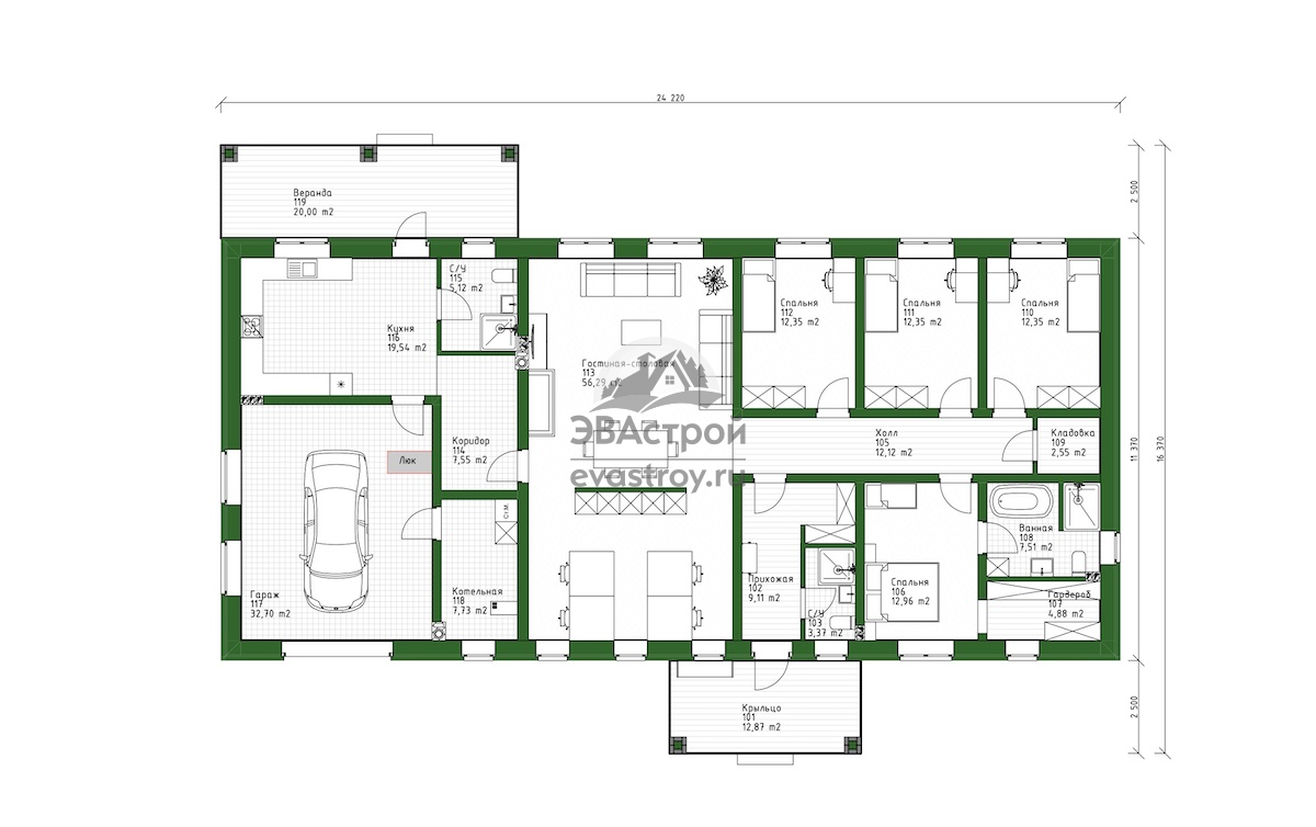
Одноэтажный дом в европейском стиле прекрасно впишется в узкий участок. В нем созданы условия для проживания семьи из пяти человек. Данную модель можно рассматривать для строительства как загородного коттеджа, так и постоянного дома — в любом случае вы получите комфортное и просторное жилище.
Проектом предусмотрен
Дом облицован пестрой
Центром дома является
Слева от гостиной располагается хозяйственная часть, которая начинается коридором. Здесь находится встроенный гараж, кухня, котельная и санузел. Из кухни есть выход на веранду, а в гараже спроектирован люк на чердак.
Справа от
Для покупки проекта p227 оставьте заявку на сайте или свяжитесь с менеджерами ЭВАстрой по контактному телефону
Площадь:
226.49 м2Площадь:
227 м2Площадь:
227 м2Площадь:
227 м2Заполните формы ниже и наши специалисты свяжутся с вами в самое ближайшее время.
Заполните формы ниже и наши специалисты свяжутся с вами в самое ближайшее время.
Заполните формы ниже и наши специалисты свяжутся с вами в самое ближайшее время.
Заполните формы ниже и наши специалисты свяжутся с вами в самое ближайшее время.
Заполните формы ниже и наши специалисты свяжутся с вами в самое ближайшее время.