Купить проект Стоимость проекта: 37 000 руб.
Разделы проекта: АР (архитектурный раздел), КР (конструктивный раздел)
Дополнительно можно заказать: паспорт проекта (?) за 5000 руб. и копию проекта за 2000 руб. и PDF копию проекта за 3000 руб.

Общая площадь: 160 м2;
Габариты дома: 14.5 x 8.6 м;
Этажность: 2 (вкл. Мансардный);
Фундамент: ленточный ж/б;
Материал стен: Газобетон или Керамические блоки ;
Перекрытия: монолитная железобетонная плита;
Крыша: мансардная;
Кровля: керамическая черепица;
Фасад: пустотелый керамический блок (или газобетон) 25 см, пенопласт 14 см, штукатурка;
Стиль: Европейский;
  • Гараж (1 место)
  • Терраса на 1-м этаже
  • Эркер
  • Балкон
  • Для узкого участка

Стоимость строительства дома не просчитана ЗАКАЖИТЕ СМЕТУ БЕСПЛАТНО
Нравится данный дом?

Данный проект, как и любой другой готовый проект дома или коттеджа из нашего каталога, будет предоставлен Вам бесплатно при заказе строительства дома.

Также бесплатно при заключении договора:

Детальная смета

Выезд специалиста на объект, привязка к участку

Установка высотных отметок

ОСТАВИТЬ ЗАЯВКУ

Данный проект может быть изменен в соответствии с Вашими пожеланиями.

Мы готовы изменить размеры дома и оптимизировать планировки, подобрать оптимальные (другие) материалы, уменьшить или увеличить высоту этажей, добавить или убрать цокольный этаж, добавить террасу, балкой и многое другое.

Готовый проект VV-6

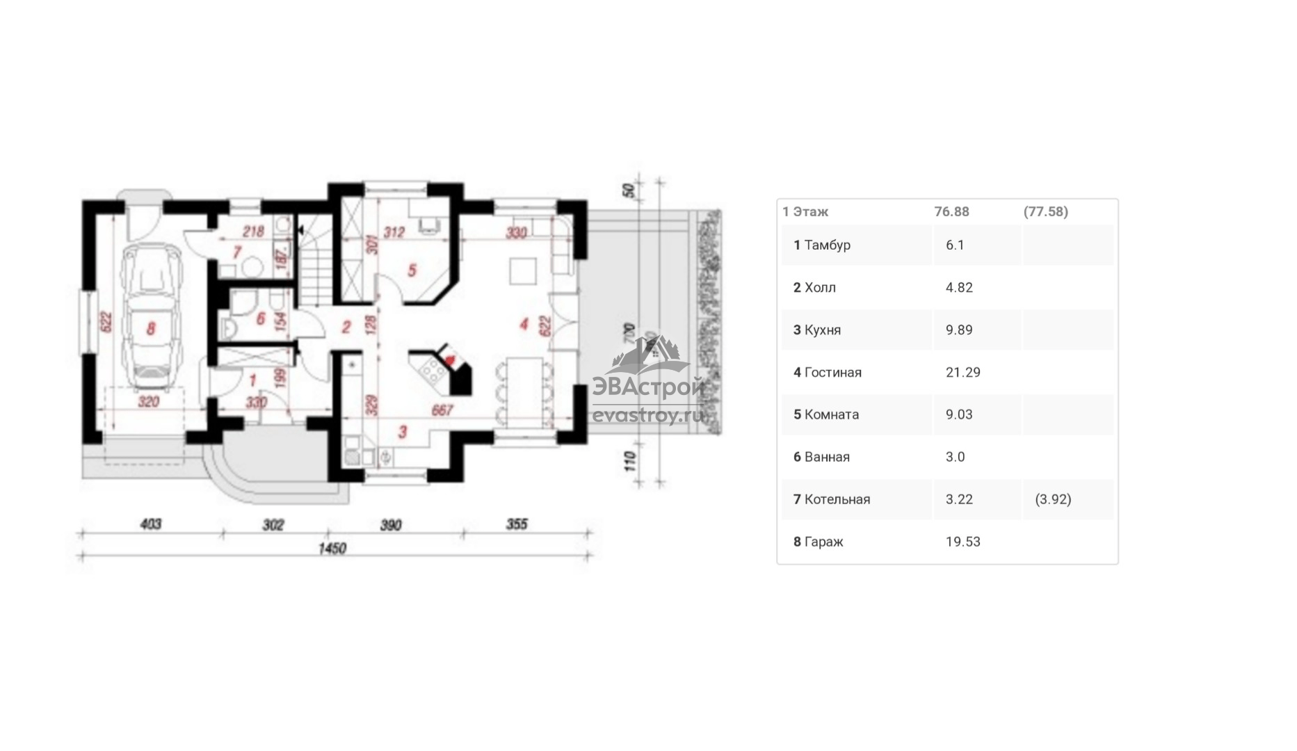
Перед вами проект двухэтажного мансардного дома с четырьмя спальнями и гаражом. Он спроектирован так, чтобы хозяева могли наслаждаться простором и хорошо продуманным интерьером. Общая площадь объекта 160 м2. Набор помещений включает также гостиную-столовую, кухню, 2 санузла, 2 гардеробные, котельную-постирочную. Технические решения, дизайн Для реализации проекта вам не понадобится широкий участок, поскольку коттедж компактные, его габариты 14.5 x 8.6 м. Здание сложено из блоков — газобетонных или керамических, опирается на ленточный ж/б фундамент и накрыто двускатной крышей. Перекрытия — монолитные ж/б плиты. Главный и садовый фасады украшают прямоугольные эркеры, переходящие с мансардные окна с балконами. Пристроенный гараж накрыт собственной двускатной крышей, расположенный несколько ниже основной кровли. Это позволяет зрительно отделить парковку от жилой части, при этом сохраняя архитектурное единство дома. Привлекательность загородного коттеджа подчеркивает крыльцо с аркой и яркий контраст белых оштукатуренных стен и темно-красной кровли из керамочерепицы. высота в коньке — 7,29 м; высота 1-го этажа — 270 см; 2-го — 248 см; высота мансардной стены — 108 см. Планировка Все помещения расположены продуманно, с максимальным использованием доступного пространства. Гостиная с камином и широким окном на террасу, близость столовой и кухни — достоинства планировки первого этажа. Варочная поверхность кухни вынесена на остров, при этом вытяжку удобно совместить с дымоходом камина. Жилая комната с отдельным входом из холла; использовать ее можно как спальню или кабинет. Из просторного тамбура оборудован переход в гараж, а оттуда в котельную, объединенную с постирочной. С котельной рационально сблокирован санузел с душевой кабиной. В мансарде две детские комнаты, родительская спальня с гардеробной и общий санузел. Все комнаты оснащены балконами. Еще одна комната находится над гаражом, в ней также имеется небольшая гардеробная и французский балкон. Для приобретения чертежей оформите заявку на сайте или свяжитесь с менеджерами «Эвастрой» по контактному телефону +7 (495) 175-30-42.

Другие проекты домов по площади

ВЕРНУТЬСЯ К РЕЗУЛЬТАТАМ ПОИСКА