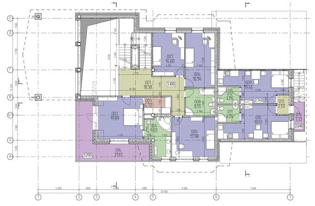
Дом строится из газосиликатного блока и железобетонных элементов. Вместо несущих перегородок внутри дома, конструкция выполнена из железобетонных колонн для того, чтобы добится свободной планировки. Наружная отделка дома из камня и дерева, с панорамными окнами, 2-х светной гостинной, пяти жилыми комнатами, гараж на две машины, бойлерной, двумя обустроеными помещениями для обслуживающего персонала и прачечной комнатой. Дом с видом на природу, с безрамным остеклением и много света . Дом выполнен в северном стиле и содержит элементы шале, много камня и дерева снаружи. Душа дома наполнена духом природы и простора.
Заполните формы ниже и наши специалисты свяжутся с вами в самое ближайшее время.
Заполните формы ниже и наши специалисты свяжутся с вами в самое ближайшее время.
Заполните формы ниже и наши специалисты свяжутся с вами в самое ближайшее время.
Заполните формы ниже и наши специалисты свяжутся с вами в самое ближайшее время.
Заполните формы ниже и наши специалисты свяжутся с вами в самое ближайшее время.
























