
Данный проект, как и любой другой готовый проект дома или коттеджа из нашего каталога, будет предоставлен Вам бесплатно при заказе строительства дома.
Также бесплатно при заключении договора:
Детальная смета
Выезд специалиста на объект, привязка к участку
Установка высотных отметок
ОСТАВИТЬ ЗАЯВКУДанный проект может быть изменен в соответствии с Вашими пожеланиями.
Мы готовы изменить размеры дома и оптимизировать планировки, подобрать оптимальные (другие) материалы, уменьшить или увеличить высоту этажей, добавить или убрать цокольный этаж, добавить террасу, балкой и многое другое.
Представляем проект под строительство трехуровневого мансардного дома общей площадью 264 м2, для семьи из 4-5 человек. Коттедж отличается представительным экстерьером в европейском стиле, а также весьма комфортной планировкой, где учтены потребности домочадцев в полноценном отдыхе и бытовых удобствах. Особенностями предложения является просторная крытая терраса и автонавес на два машиноместа — легкая и экономичная альтернатива обычному гаражу.
Технические особенности, дизайн
В состав дома входят два наземных этажа и мансарда. Для строительства нужны газобетонные блоки толщиной 400 мм — из этого легкого и теплого материала выполняются наружные и внутренние несущие стены. Для возведения перегородок предусмотрен кирпич толщиной 120 мм. У здания ленточный ж/б фундамент и монолитные ж/б перекрытия. Что касается наружной отделки, то для облицовки цоколя предложен плитняк, для фасадов — лицевой кирпич, придающий постройке некоторую строгость и сдержанность. Декором выступают межэтажные и оконные молдинги, русты на углах, светлые межоконные панели.
В архитектурной композиции активно задействованы ризалиты. Это центральный ризалит правого фасада, с высоким пятиугольным лестничным окном, и боковые ризалиты главного и дворового фасадов. Входная группа представлена крыльцом с односкатной крышей.
Планировка
На первом этаже традиционно расположены дневные помещения — кухня-столовая, совмещенная с гостиной. На просторной террасе можно устроить летнюю столовую и зону барбекю. Кабинет (15 м2) вместит не только письменный/компьютерный стол, но и небольшой диван и книжный шкаф. Во входной зоне размещен тамбур, прихожая с гардеробным шкафом, топочная, техблок, санузел и лестничный холл.
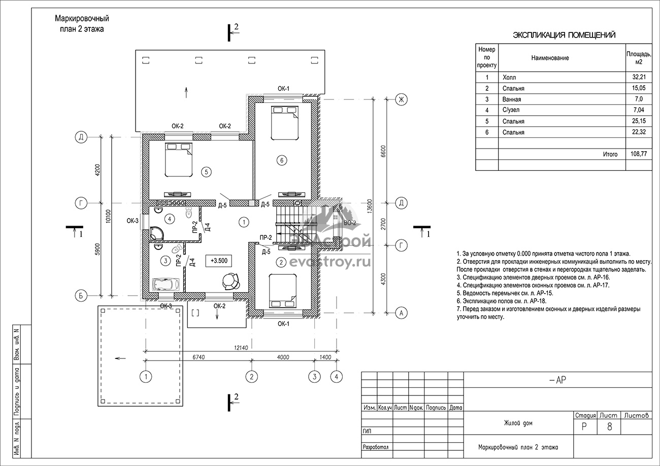
На втором этаже две просторные спальни (22 м2 и 25 м2) и комната поменьше (15 м2). Также предусмотрена ванная и санузел с душем. В просторном холле можно обустроить дополнительную зону отдыха. Мансардный ярус полностью свободен; хозяева могут распоряжаться им по собственному усмотрению. Освещение мансарды — через фронтонные и кровельные окна.
Получить консультацию специалистов «Эвастрой» и оформить покупку проекта можно по телефону +7 (495) 175-30-42.
Площадь:
237.61 м2Площадь:
238 м2Площадь:
238 м2Площадь:
238 м2Заполните формы ниже и наши специалисты свяжутся с вами в самое ближайшее время.
Заполните формы ниже и наши специалисты свяжутся с вами в самое ближайшее время.
Заполните формы ниже и наши специалисты свяжутся с вами в самое ближайшее время.
Заполните формы ниже и наши специалисты свяжутся с вами в самое ближайшее время.
Заполните формы ниже и наши специалисты свяжутся с вами в самое ближайшее время.