
Данный проект, как и любой другой готовый проект дома или коттеджа из нашего каталога, будет предоставлен Вам бесплатно при заказе строительства дома.
Также бесплатно при заключении договора:
Детальная смета
Выезд специалиста на объект, привязка к участку
Установка высотных отметок
ОСТАВИТЬ ЗАЯВКУДанный проект может быть изменен в соответствии с Вашими пожеланиями.
Мы готовы изменить размеры дома и оптимизировать планировки, подобрать оптимальные (другие) материалы, уменьшить или увеличить высоту этажей, добавить или убрать цокольный этаж, добавить террасу, балкой и многое другое.
Загородный кирпичный дом общей площадью 264 м² выполнен в европейском стиле. Это предложение для семьи из 5–6 человек.
Особенности и преимущества проекта
Технические решения и дизайн
Несущими конструкциями являются стены из пустотелого кирпича 510 мм. Основной и декоративный слой кладки разделены воздушной прослойкой, которая исключит увлажнение и последующее промерзание стены дома, сохранит теплотехнические характеристики дома на расчетном уровне. Фундамент в доме предусмотрен
Планировка
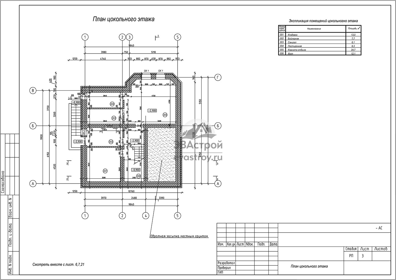
В цоколе размещены необходимые хозяйственные помещения и просторная комната отдыха. Попасть в подземный ярус можно снаружи — через бойлерную, либо по межэтажной лестнице.
Первый этаж отличается роскошным холлом площадью 31 м². Стильный дизайн превратит эту часть дома в парадный зал, создающий самое благоприятное впечатление о вашем жилище. Гостиная и полуоткрытая кухня объединены в общее дневное пространство, дополненное выходом на террасу. Дополняет обстановку санузел с доступом из холла. В гараж, расположенный ниже уровня первого яруса, спускаемся по межэтажной лестнице.
И по этой же лестнице, двигаясь в обратном направлении, поднимаемся в мансарду. На верхнем ярусе спроектирована
Для покупки проекта 101–62 оставьте заявку на сайте или свяжитесь с менеджерами «Эвастрой» по контактному телефону
Площадь:
237.61 м2Площадь:
238 м2Площадь:
238 м2Площадь:
238 м2Заполните формы ниже и наши специалисты свяжутся с вами в самое ближайшее время.
Заполните формы ниже и наши специалисты свяжутся с вами в самое ближайшее время.
Заполните формы ниже и наши специалисты свяжутся с вами в самое ближайшее время.
Заполните формы ниже и наши специалисты свяжутся с вами в самое ближайшее время.
Заполните формы ниже и наши специалисты свяжутся с вами в самое ближайшее время.